1 / 0















+ 10
Tehniline ülevaade
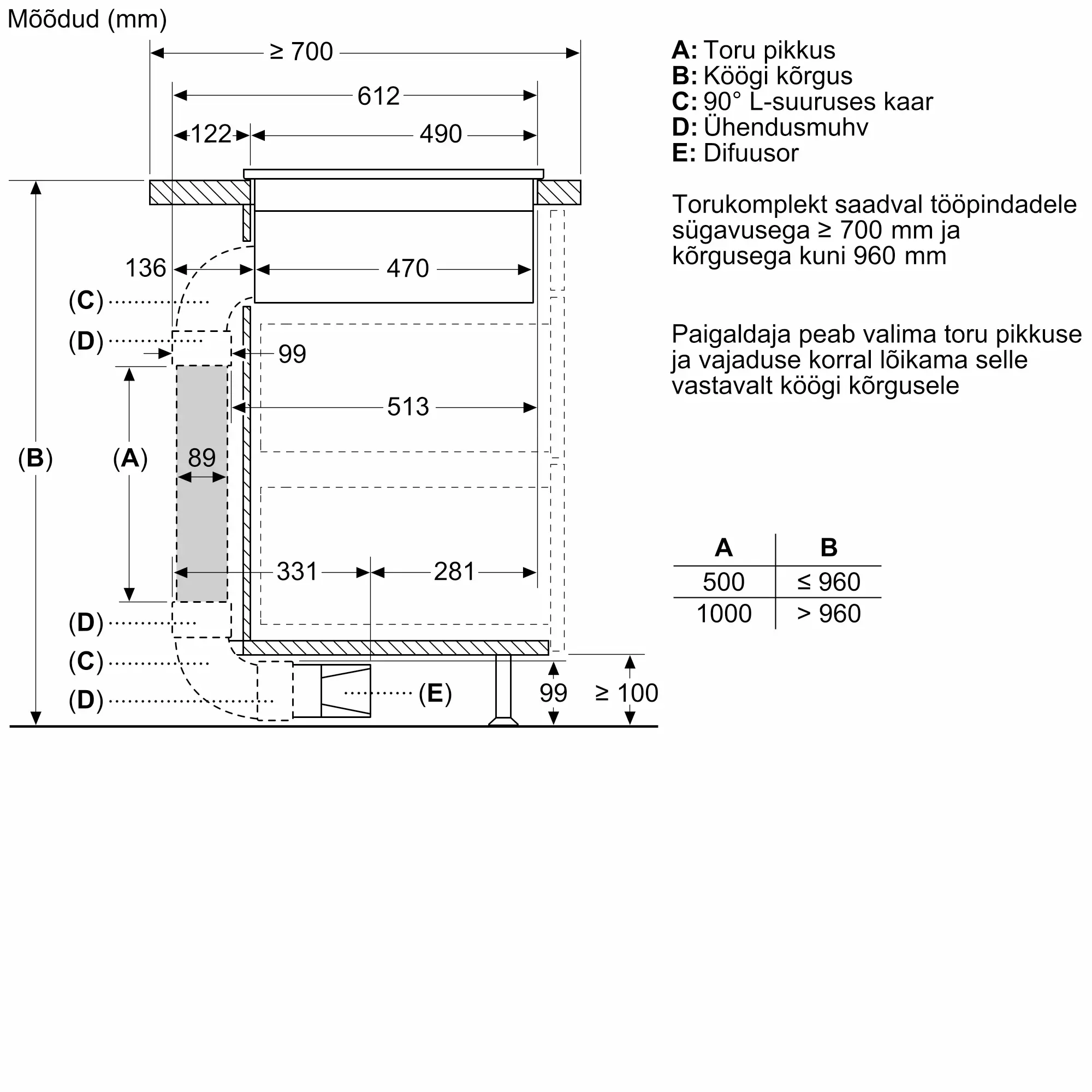
Toote mõõdud
223x816x527 mm
Pliidiplaadi tüüp
Induktsioonpliidiplaat õhupuhastiga
Üheaegselt kasutatavate asendite koguarv
4
Raamitüüp
Terasraam
Töörežiim
Muudetav
Maks. õhu väljapuhe
500 m³/h
Müratase max kiirusel (2010/30/EL)
69 dB
Wifi ja Home Connect
Jah